476
POPULAR SCIENCE MONTHLY.
THE MASSACHUSETTS INSTITUTE OF TECHNOLOGY.
A movement is now in progress to establish a great school of technology in connection with the University of London. Through the efforts of Lord Rosebury, chancellor of the university, a sum of $2,500,000 has been subscribed for buildings and land. The London County Council has agreed to contribute $100,000 a year for maintenance on condition that the government and other municipalities take part in the movement. In all the discussions in regard to the establishment of this school of technology, reference has been made to the fact that Germany and America are in advance of Great Britain in their provision for technical education, and of all our schools, the Massachusetts Institute of Technology is the most noteworthy.

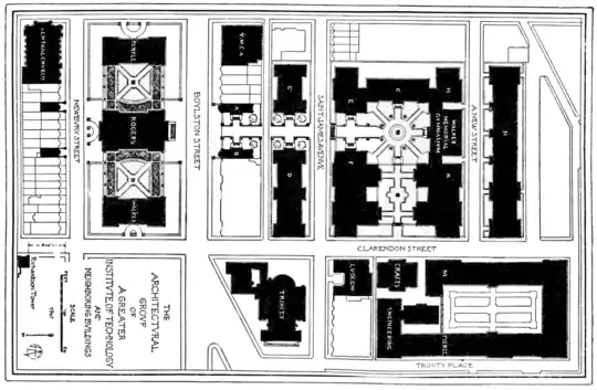
The institute is at present seriously considering the desirability of obtaining a new site. The land on which its buildings now stand having become part of the business quarter of the city, land adequate for the needs of the institute could only be purchased at great expense. The institute has recently obtained powers from the legislature to sell its present site should it wish to do so, it having originally been a condition that it forever be preserved from sale. This permission was not obtained without a considerable amount of opposition, and the parallel bill on behalf of the Society of Natural History has not been passed. There still appears, however, to be some opposition to the change. Mr. Henry A. Phillips contributed to the last number of The Technology Review a plan for developing the institute on its present site, as shown in the accompanying figure. The buildings now occupied by the institute are the Rogers, the Walker, the Engineering and the Pierce buildings. It is estimated that the land required for the development here sketched would be $1,800,000, according to the assessed valuation, whereas the removal of the institute would require the sacrifice of buildings worth perhaps $1,000,000.
The Institute of Technology has this year made on its educational side an important advance in establishing a